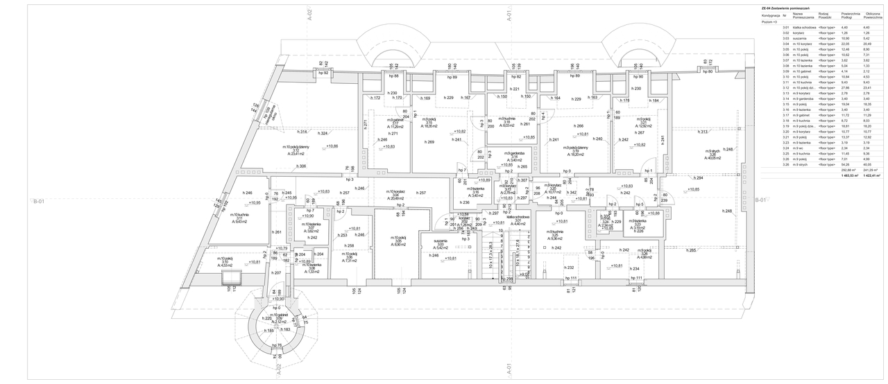
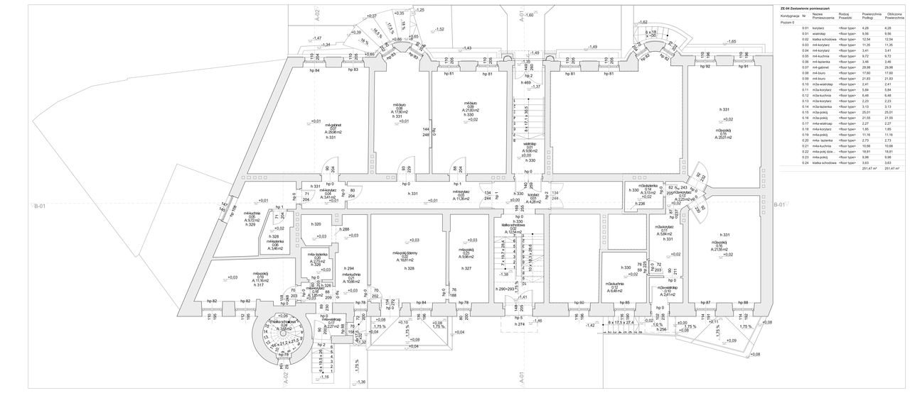
Inwentaryzacja 3D Zabytkowej Kamienicy Mieszkalno-Usługowej W Gdańsku